政府信息
公开指南 政府信息
公开制度
公开指南 政府信息
公开制度
政府信息
公开年报
依申请公开
政府公报
平台链接
公开年报
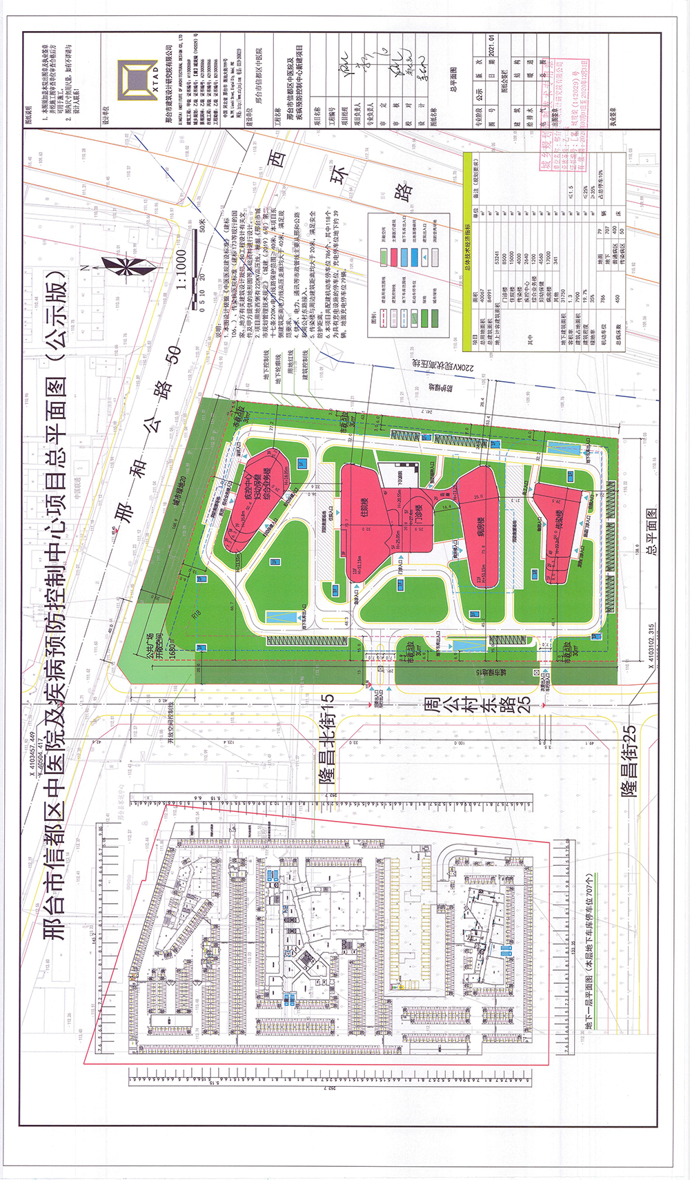
邢台市自然资源和规划局关于邢台市信都区中医院及疾病预防控制中心项目规划设计方案批前公示的公告
发布时间: 2021-01-22 发布机构:市自然资源和规划局 浏览次数:337 字体:[大 中 小]
体裁分类:公告公示








主办:邢台市人民政府办公室主办 邢台市人民政府网 版权所有
冀ICP备20017147号-1 邢公备130500000001 网站标识码:1305000002
