政府信息
公开指南 政府信息
公开制度
公开指南 政府信息
公开制度
政府信息
公开年报
依申请公开
政府公报
平台链接
公开年报
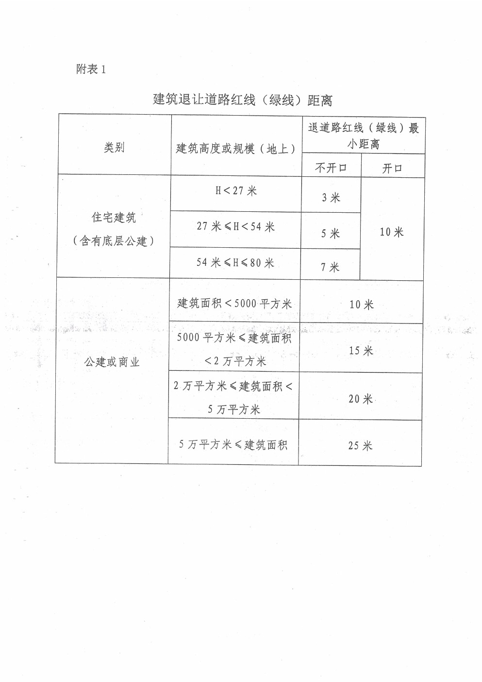
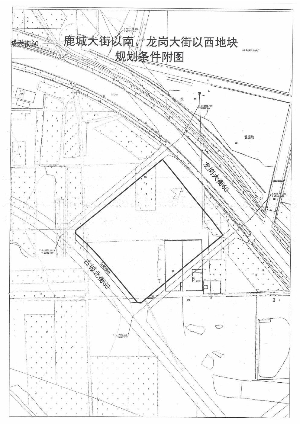
关于邢台市鹿城大街以南、龙岗大街以西地块(鹿城雅院)项目规划总平面图批前公示的公告
发布时间: 2026-04-13 发布机构:市自然资源和规划局 浏览次数:71 字体:[大 中 小]
体裁分类:公告公示 主题分类:国土资源、能源























主办:邢台市人民政府办公室主办 邢台市人民政府网 版权所有
冀ICP备20017147号-1 邢公备130500000001 网站标识码:1305000002
